8-PARTEIEN-MEHRFAMILIENHAUS IN ZENTRALER LAGE - KURZFRISTIG CASH FLOW POSITIV!
Objektart
Adresse
Objektdaten
Informationen
Ausstattung
Details
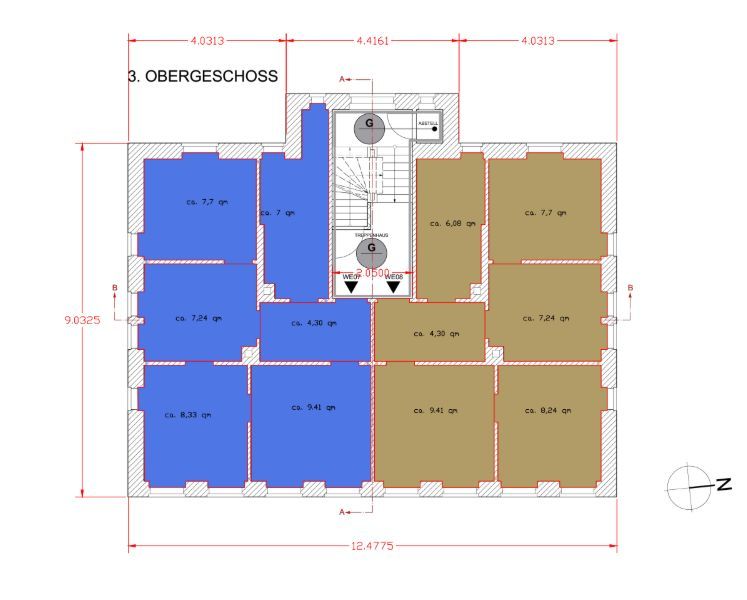
Zum Verkauf steht ein Mehrfamilienhaus in zentraler Lage von Braunschweig. Das im Jahr 1877 errichtete Gebäude erstreckt sich über vier Geschosse und umfasst insgesamt acht Wohneinheiten mit jeweils drei Zimmern.
Die Gesamtwohnfläche beträgt ca. 530 m² und verteilt sich auf sechs Wohnungen mit jeweils rund 75 m² sowie zwei zusätzliche Einheiten im Dachgeschoss. Die Grundstücksfläche beläuft sich auf 338 m², die Gebäudenutzfläche beträgt ca. 708 m².
Aktuell sind 5 der 8 Wohneinheiten vermietet, wodurch sich für Kapitalanleger ein unmittelbares Entwicklungspotenzial ergibt. Nach Mietanpassung und Vollvermietung liegt die jährliche Soll-Nettokaltmiete bei ca. 45.000 EUR. Die Ist-Miete inkl. Einberechnung des Leerstandes beträgt ca. 26.730 EUR/ Jahr.
Die Beheizung erfolgt über eine Gaszentralheizung aus dem Jahr 2001. Das Gebäude weist die Energieeffizienzklasse C auf und befindet sich damit für seine Baualtersklasse in einem soliden Zustand.
Folgendes erwartet Sie in diesem Mehrfamilienhaus:
- 8 Einheiten (EG, 1OG., 2OG., DG)
- davon 6x75 m², 2x44 m²
- Komplett unterkellert
- Gas Heizung - Energieeffizienzklasse C
- Klinkerfassade
- Zentrale Lage in Braunschweig, sehr gute Anbindung
- In kurzer Zeit "cash-flow-positiv"
Die Immobilie befindet sich in gut angebundener Lage von Braunschweig in der Frankfurter Straße mit gewachsener Infrastruktur und stabiler Wohnnachfrage.
Öffentliche Verkehrsmittel sind fußläufig erreichbar und gewährleisten eine schnelle Anbindung an die Innenstadt sowie den Hauptbahnhof. Die Braunschweiger Innenstadt mit umfangreichen Einkaufs-, Gastronomie- und Dienstleistungsangeboten liegt nur wenige Minuten entfernt.
Einkaufsmöglichkeiten des täglichen Bedarfs, Schulen, Kindergärten und medizinische Einrichtungen befinden sich in unmittelbarer Umgebung. Zudem besteht eine gute Anbindung an das überregionale Straßennetz.
Die Lage bietet insgesamt eine solide Kombination aus Erreichbarkeit, Nahversorgung und Vermietungssicherheit.
Sie Interessieren sich für den Kauf weiterer Objekte & Grundstücke aus unserem Portfolio oder spielen mit dem Gedanken, Ihre Immobilie zu verkaufen, dann kommen Sie gerne auf uns zu!
Als Familienunternehmen mit 12 Jahren Immobilien-Expertise und einem internationalen Kundennetzwerk bieten wir Ihnen nicht nur eine kostenlose Bewertung Ihrer Immobilie, sondern einen Service der Extra-Klasse - mit exzellenten Markt- und Ortskenntnissen, innovativer Technik, hochwertiger Videoproduktion und Empathie.
www. wiegand-und-partner .de
Ansprechpartner
Mobil: 017670953919
z+openimmo_generic+wiegand-und-partner@inquiries.everreal.co
Energieausweis (Verbrauchsausweis)
97,60 kWh / (m²*a) Energieverbrauchskennwert
97,60 kWh / (m²*a) Energieverbrauchskennwert
97,60 kWh / (m²*a) Energieverbrauchskennwert
Weitere Informationen
| Wesentlicher Energieträger | Gas |
| Energieausweis Jahrgang | ab dem 1.5.2014 |
| Energieausweis Werteklasse | C |
| Energieausweis Baujahr | 2001 |
| Befeuerung | Gas |
Ich bin damit einverstanden, dass mir Karten von Google angezeigt werden. Es gelten die Datenschutzbedingungen von Google (https://policies.google.com/privacy).
Ich bin einverstanden