Objektart
Adresse
Objektdaten
Informationen
Ausstattung
Details
---ATTRAKTIVE KFW-FÖRDERUNG MÖGLICH---
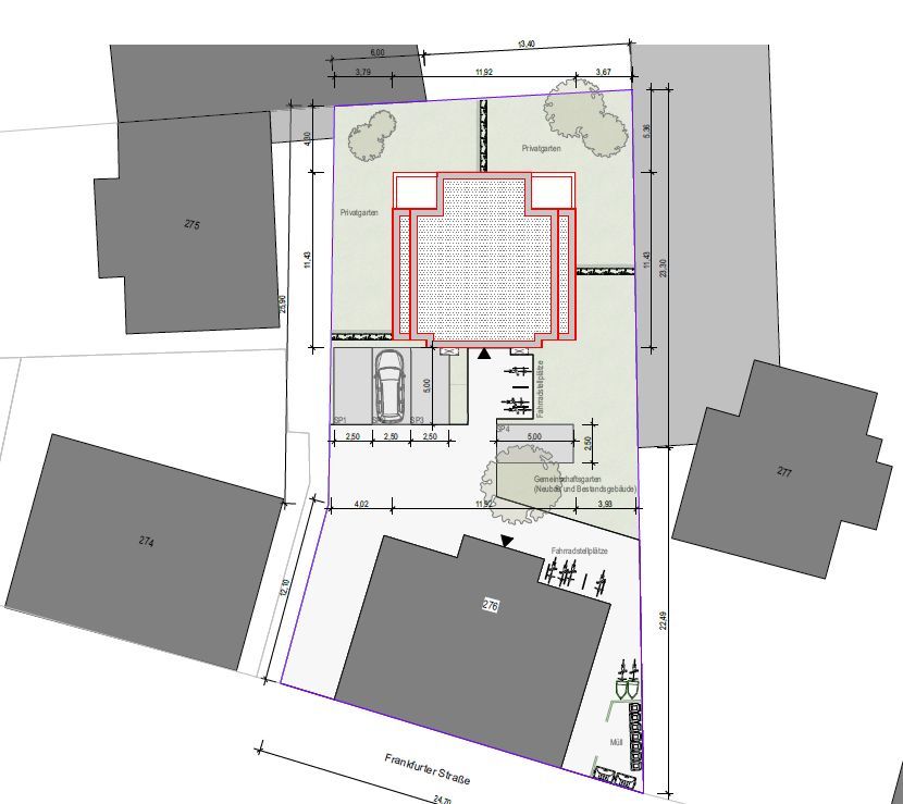
Zum Verkauf steht ein Baugrundstück mit einer Fläche von ca. 523 m², das sich ideal für die Realisierung eines Mehrfamilienhauses mit integrierter Gewerbeeinheit eignet. Das Grundstück befindet sich in ruhiger Hinterhoflage und verbindet damit eine zentrale Lage mit einer abgeschirmten Wohnsituation. Darüber hinaus kann das Grundstück nicht geteielt werden.
Aktuell befindet sich auf dem Grundstück ein Garagenhof, der im Zuge der geplanten Neubebauung zurückgebaut werden kann. Das Grundstück ist teilerschlossen und bietet eine gute Grundlage für eine zeitnahe Projektentwicklung.
Ein besonderer Vorteil für Investoren und Projektentwickler ist die bereits vorliegende Baugenehmigung für die Errichtung eines Mehrfamilienhauses mit insgesamt vier Wohneinheiten sowie einer Gewerbeeinheit im Erdgeschoss. Das genehmigte Bauvorhaben sieht eine Bruttogrundfläche von insgesamt ca. 495,95 m² vor. Zudem umfasst die Planung 1 Kellergeschoss, 2 Vollgeschosse und 1 Staffelgeschoss, wodurch eine effiziente und wirtschaftlich attraktive Flächennutzung realisiert werden kann.
Im Rahmen der genehmigten Planung ist zudem die Integration von bis zu vier Stellplätzen vorgesehen. Darüber hinaus besteht die Möglichkeit, zusätzliche Fahrradstellplätze für zukünftige Bewohner zu schaffen und damit den heutigen Anforderungen an nachhaltige Mobilität gerecht zu werden. Auch die Berücksichtigung von Freiflächen ist in der Planung vorgesehen, wodurch attraktive Außenbereiche für die zukünftigen Bewohner entstehen können.
Darüber hinaus besteht die Möglichkeit, einen Keller sowie eine Tiefgarage zu errichten, was zusätzliche Flexibilität bei der Projektplanung bietet und die Wohn- sowie Nutzungskomfort deutlich erhöhen kann.
Durch aktuelle Förderungen der KFW, wird auch der Bau von Microapartments nochmal deutlich interessanter! Mit bis zu 100.000EUR Förderungsvolumen pro Wohneinheit, können Baukosten merkbar reduziert werden - Sprechen Sie uns an!
Das Grundstück richtet sich insbesondere an Investoren, Projektentwicklungsunternehmen, Bauherren sowie Baufirmen, die ein genehmigtes Neubauprojekt mit überschaubarem Planungsaufwand realisieren möchten. Durch die vorhandene Baugenehmigung können zeitintensive Genehmigungsprozesse deutlich verkürzt werden, wodurch eine zügige Umsetzung des Bauvorhabens möglich ist.
Insgesamt bietet dieses Baugrundstück eine attraktive Gelegenheit zur Entwicklung eines modernen Wohn- und Gewerbeprojekts mit langfristigem Vermietungs- und Wertentwicklungspotenzial.
Das Baugrundstück in der Frankfurter Straße bietet eine hervorragende Gelegenheit für Bauherren und Projektentwickler, ein modernes und wirtschaftlich attraktives Neubauprojekt zu realisieren. Die Lage überzeugt durch eine sehr gute Sichtbarkeit, eine etablierte Infrastruktur sowie eine hohe Nachfrage nach Wohn- und Gewerbeflächen.
Die Frankfurter Straße gehört zu den gut frequentierten Hauptachsen der Umgebung und gewährleistet sowohl eine ausgezeichnete Erreichbarkeit als auch eine starke Präsenz im Straßenbild. Diese Standortqualität bietet ideale Voraussetzungen für eine attraktive Gewerbeeinheit im Erdgeschoss - beispielsweise für Büro-, Praxis- oder Dienstleistungsflächen - während in den oberen Etagen moderner Wohnraum mit nachhaltigem Vermietungspotenzial entstehen kann.
Das direkte Umfeld ist geprägt von einer gewachsenen Wohn- und Geschäftsbebauung. Einkaufsmöglichkeiten, gastronomische Angebote sowie Einrichtungen des täglichen Bedarfs befinden sich in komfortabler Nähe. Schulen, Kindergärten und medizinische Versorgungseinrichtungen sind ebenfalls gut erreichbar und unterstreichen die hohe Wohnattraktivität des Standorts.
Darüber hinaus profitiert die Lage von einer sehr guten Verkehrsanbindung. Sowohl der Individualverkehr als auch der öffentliche Nahverkehr ermöglichen eine schnelle Verbindung in die umliegenden Stadtteile sowie in das regionale Umfeld. Dies erhöht die Attraktivität sowohl für zukünftige Bewohner als auch für Gewerbemieter erheblich.
Für Investoren und Bauherren eröffnet sich hier die Möglichkeit, ein nachhaltiges und zukunftsfähiges Wohn- und Nutzungskonzept zu entwickeln. Die Kombination aus urbaner Lage, guter Infrastruktur und stabiler Nachfrage nach Wohnraum bietet eine solide Grundlage für eine langfristige Vermietbarkeit und Wertentwicklung.
Die Frankfurter Straße vereint damit entscheidende Standortfaktoren für eine erfolgreiche Projektentwicklung - Sichtbarkeit, Infrastruktur und Nachfrage - und stellt eine äußerst interessante Gelegenheit für die Realisierung eines modernen Mehrfamilienhauses mit Gewerbeeinheit dar.
Sie Interessieren sich für den Kauf weiterer Objekte & Grundstücke aus unserem Portfolio, dann kommen Sie gerne auf uns zu!
Spielen auch Sie mit dem Gedanken, Ihre Immobilie zu verkaufen?
Als Familienunternehmen mit 12 Jahren Immobilien-Expertise und einem internationalen Kundennetzwerk bieten wir Ihnen nicht nur eine kostenlose Bewertung Ihrer Immobilie, sondern einen Service der Extra-Klasse - mit exzellenten Markt- und Ortskenntnissen, innovativer Technik, hochwertiger Videoproduktion und Empathie.
Damit Ihre Immobilie den Preis erzielt, den sie verdient!
www. wiegand-und-partner .de
Ansprechpartner
Mobil: 017670953919
z+openimmo_generic+wiegand-und-partner@inquiries.everreal.co
Ich bin damit einverstanden, dass mir Karten von Google angezeigt werden. Es gelten die Datenschutzbedingungen von Google (https://policies.google.com/privacy).
Ich bin einverstanden