NEUBAU REIHENENDHAUS ZUR VERWIRKLICHUNG EIGENER TRÄUME AM NORDPARK - BS
Objektart
Adresse
Objektdaten
Informationen
Ausstattung
Details
---- BAUTRÄGERFREI ----
Zum Verkauf steht der Rohbau (auch tragender Rohbau/Hochbau) eines Reihenendhauses in einem modernen Wohnensemble mit insgesamt sieben Reihenhäusern. Die Immobilie bietet eine besondere Gelegenheit für alle, die ihren zukünftigen Wohnraum nach eigenen Vorstellungen gestalten und ein Zuhause ganz nach den Bedürfnissen ihrer Familie schaffen möchten.
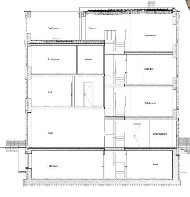
Auf einem ca. 227 m² großen Grundstück entsteht ein großzügiges Haus mit rund 230 m² geplanter Wohnfläche, verteilt auf drei Stockwerke. Die geplante Raumaufteilung mit insgesamt sieben Zimmern und drei Badezimmern bietet viel Platz für Familienleben, Homeoffice oder individuelle Rückzugsorte für jedes Familienmitglied. Eine Dachterrasse ergänzt das Raumkonzept und schafft einen zusätzlichen Ort zum Entspannen mit Ausblick.
Als Reihenendhaus profitiert die Immobilie von zusätzlichem Lichteinfall, mehr Privatsphäre und einem eigenen Gartenstück, das Raum für gemeinsame Familienmomente, Spielmöglichkeiten für Kinder oder entspannte Stunden im Freien bietet.
Der Rohbau ist bereits erstellt und eine vollständige Baugenehmigung liegt vor, sodass der Innenausbau flexibel und individuell umgesetzt werden kann. Ob offene Wohnküche als Treffpunkt für die Familie, großzügige Wohnbereiche oder moderne Badkonzepte - hier lassen sich Wohnideen ganz nach den eigenen Vorstellungen verwirklichen.
Ein ca. 16 m² großer Keller bietet zusätzlichen Platz für Technik, Hauswirtschaft oder Stauraum. Ein Stellplatz direkt am Haus sorgt zudem für komfortables Parken im Alltag.
Mit seiner großzügigen Fläche, der durchdachten Raumaufteilung und der Möglichkeit zur individuellen Gestaltung bietet dieses Haus besonders für junge Familien eine ideale Grundlage für ein langfristiges Zuhause. Die zukunftsträchtige Lage und das Entwicklungspotenzial der Umgebung machen die Immobilie zudem auch langfristig zu einer attraktiven Investition.
Folgendes können Sie in ihrem Sinne realisieren:
- 230qm Wohnfläche
- 7 Zimmer
- 4 Schlafzimmer
- 3 Bäder
- ein 16qm großen Keller
- eine Dachterrasse
Die Immobilie befindet sich am Lampadiusring in 38106 Braunschweig, in einem gewachsenen Wohngebiet der Nordstadt.
Die Infrastruktur der Umgebung ist hervorragend. Einkaufsmöglichkeiten für den täglichen Bedarf, Bäckereien, Ärzte, Apotheken sowie weitere Dienstleistungsangebote sind in wenigen Minuten erreichbar. Auch Kindergärten, Schulen, Spielplätze und Sporteinrichtungen befinden sich im näheren Umfeld und machen die Lage besonders attraktiv für Familien.
Die Anbindung an den öffentlichen Nahverkehr ist sehr gut. Mehrere Bus- und Straßenbahnlinien sind schnell erreichbar und ermöglichen eine bequeme Verbindung in die Braunschweiger Innenstadt sowie zum Hauptbahnhof. Auch mit dem Auto besteht eine gute Anbindung an die wichtigsten Verkehrsachsen der Stadt.
Ein weiterer Vorteil ist die Nähe zur Technischen Universität Braunschweig sowie zur Innenstadt, die in wenigen Minuten erreichbar ist. Gleichzeitig bietet die Umgebung durch Grünflächen und gewachsene Wohnstrukturen ein angenehmes und ruhiges Wohnumfeld.
Insgesamt vereint die Lage eine gute Infrastruktur, kurze Wege im Alltag und ein familienfreundliches Wohnumfeld - ideale Voraussetzungen für langfristig attraktives Wohnen.
----REIHENMITTELHÄUSER SIND EBENFALLS ZU ERWERBEN - 297TEUR----
Sie Interessieren sich für den Kauf weiterer Objekte & Grundstücke aus unserem Portfolio, dann kommen Sie gerne auf uns zu!
Spielen auch Sie mit dem Gedanken, Ihre Immobilie zu verkaufen?
Als Familienunternehmen mit 12 Jahren Immobilien-Expertise und einem internationalen Kundennetzwerk bieten wir Ihnen nicht nur eine kostenlose Bewertung Ihrer Immobilie, sondern einen Service der Extra-Klasse - mit exzellenten Markt- und Ortskenntnissen, innovativer Technik, hochwertiger Videoproduktion und Empathie.
Damit Ihre Immobilie den Preis erzielt, den sie verdient!
www. wiegand-und-partner .de
Ansprechpartner
Mobil: 017670953919
z+openimmo_generic+wiegand-und-partner@inquiries.everreal.co
Ich bin damit einverstanden, dass mir Karten von Google angezeigt werden. Es gelten die Datenschutzbedingungen von Google (https://policies.google.com/privacy).
Ich bin einverstanden