NEUWERTIGES PENTHOUSE IM LUXUSSEGMENT AM WASSERTURM MIT DACHTERRASSE, BALKON & PRIVATLIFT!
Objektart
Adresse
Objektdaten
Informationen
Ausstattung
Details
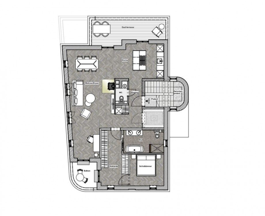
Diese hochwertige 3-Zimmer-Penthouse Wohnung mit ca. 108m² Wohnfläche überzeugt durch eine luxuriöse Ausstattung und eine durchdachte Raumaufteilung. Der große Tageslicht reiche Wohn- und Essbereich bildet mit einer großzügigen Dachterrasse mit Süd-West Ausrichtung und einer Kaminoption das Herzstück der Wohnung.
Der Alltag mit einem Privatlift in die Wohnung fällt leicht! Ein französisches Frühstück auf dem Balkon oder ein entspannter Grillabend mit Blick auf den Sonnenuntergang auf der eigenen Dachterrasse ist hier keine Seltenheit!
--- Selbst ein Jacuzzi wäre hier denkbar & nicht fern ---
Der Schlafbereich mit separatem Ankleideraum bietet viel Platz und sorgt für eine angenehme & getrennte Wohnatmosphäre.
In der gesamten Wohnung ist hochwertiges, in Wolfenbüttel gefertigtes Echtholzparkett in Fischgrätenoptik, verlegt.
Das stilvolle Masterbad sowie auch das Gäste WC sind mit Naturstein ausgestattet und verfügen über italienische Designer-Armaturen.
Die Wohnung befindet sich im 3. Obergeschoss eines eleganten Hauses aus 2022 mit industriellen Designzügen.
Ein privater Kellerraum, ein gemeinschaftlicher Waschkeller sowie ein großer Fahrradraum runden das Angebot ab.
Sparen Sie nicht an Wohnqualität - folgendes erwartet Sie:
- 53,12m² Wohn- Ess-, Kochbereich
- Sehr hohe Decken
- Schlafzimmer mit separatem Ankleideraum und direktem Zugang zum Balkon
- Masterbad mit freistehender Badewanne, Regendusche & Naturstein
- Gäste WC in Naturstein und italienischen Designerarmaturen
- Echtholzparkett in Fischgrätenoptik
- Sie lieben einen Kamin - hier haben Sie die Möglichkeit! (Bild dient nur der Anschauung)
- Hochwertige Tischlerarbeiten in der gesamten Wohnung
- Stilvolle Armaturen
- Vollholz-Fenster
- Sichtbetonelemente
- Hochwertige Designerbeschläge an allen Türen & Fenstern
- Eine Dachterrasse & ein Balkon / DT in Süd-West, der Balkon in Süd-Ost Ausrichtung
- Private Eigentümergemeinschaft, bestehend aus nur 6 Einheiten
- Hochleistungsdämmung im gesamten Komplex
- Kelleretage aus wasserundurchlässigen Beton mit privatem Kellerraum
- Sowie gemeinschaftlichem Wasch- und externem Fahrradkeller
Die Wohnung befindet sich am Giersberg im beliebten Östlichen Ringgebiet von Braunschweig, einem zentrumsnahen und gesuchten Wohnviertel. Die Braunschweiger Innenstadt sowie das Schloss und die Schloss-Arkaden sind nur etwa 500 m entfernt und bequem mit dem Fahrrad oder zu Fuß erreichbar.
In der näheren Umgebung befinden sich zahlreiche Einkaufsmöglichkeiten für den täglichen Bedarf, Cafés, Restaurants, Ärzte sowie weitere Dienstleistungsangebote. Mehrere Straßenbahn- und Bushaltestellen sorgen für eine gute Anbindung an die Innenstadt, den Hauptbahnhof und andere Stadtteile.
Zudem bieten nahegelegene Grünflächen am Museumspark und Oker gute Möglichkeiten zur Erholung und Freizeitgestaltung. Die Lage verbindet somit ruhiges Wohnen mit einer sehr guten städtischen Infrastruktur.
Ihnen gefällt was Sie sehen, aber Sie benötigen mehr Platz??
Sie haben Glück, es wird in dem gleichen Objekt gerade eine luxuriöse 3 Zimmer WHNG veräußert - Kontaktieren Sie uns!
---------------------------------------------------------------------------------------------------------------------------------------------------------------
Spielen auch Sie mit dem Gedanken, Ihre Immobilie zu verkaufen?
Als Familienunternehmen mit 12 Jahren Immobilien-Expertise und einem internationalen Kundennetzwerk bieten wir Ihnen nicht nur eine kostenlose Bewertung Ihrer Immobilie, sondern einen Service der Extra-Klasse - mit exzellenten Markt- und Ortskenntnissen, innovativer Technik, hochwertiger Videoproduktion und Empathie.
Damit Ihre Immobilie den Preis erzielt, den sie verdient.
Ansprechpartner
Mobil: 017670953919
z+openimmo_generic+wiegand-und-partner@inquiries.everreal.co
Energieausweis (Bedarfsausweis)
82 kWh / (m²*a) Endenergiebedarf
82 kWh / (m²*a) Endenergiebedarf
82 kWh / (m²*a) Endenergiebedarf
Weitere Informationen
| Wesentlicher Energieträger | Fernwärme |
| Energieausweis Jahrgang | ab dem 1.5.2014 |
| Energieausweis Werteklasse | C |
| Energieausweis Baujahr | 2017 |
Ich bin damit einverstanden, dass mir Karten von Google angezeigt werden. Es gelten die Datenschutzbedingungen von Google (https://policies.google.com/privacy).
Ich bin einverstanden